About the Project
Cedar Rapids, IA
2025 Year
Project Team
Mackenzie Beals
Business Development
Marion, IA
Tom Roberts
Solutions Engineer
St. Paul, MN
Take a virtual tour of CityWalk Eatery and see how Rapids transformed this downtown restaurant with smart design and innovative solutions.
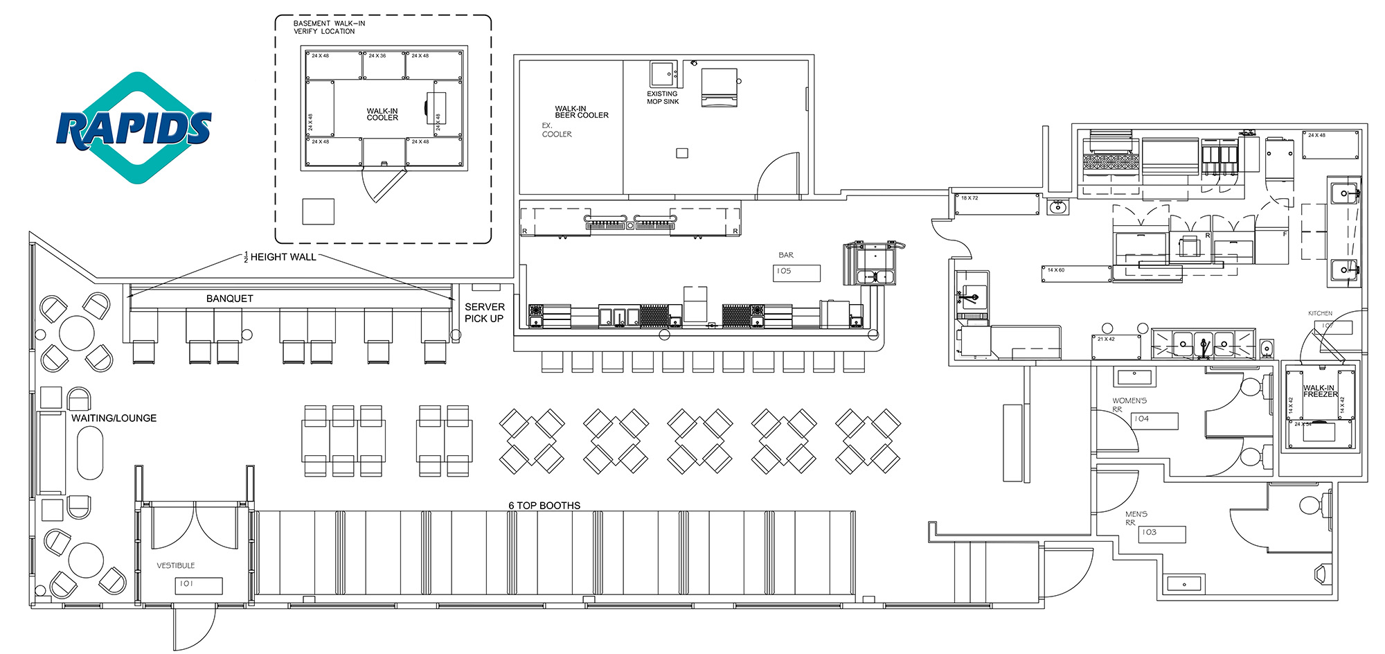
CityWalk Eatery, a vibrant restaurant located in the heart of downtown Cedar Rapids, brings together classic American cuisine and innovative culinary techniques. This project challenged our team to design a highly functional space within significant space constraints, turning limitations into opportunities to create a welcoming and efficient dining environment.
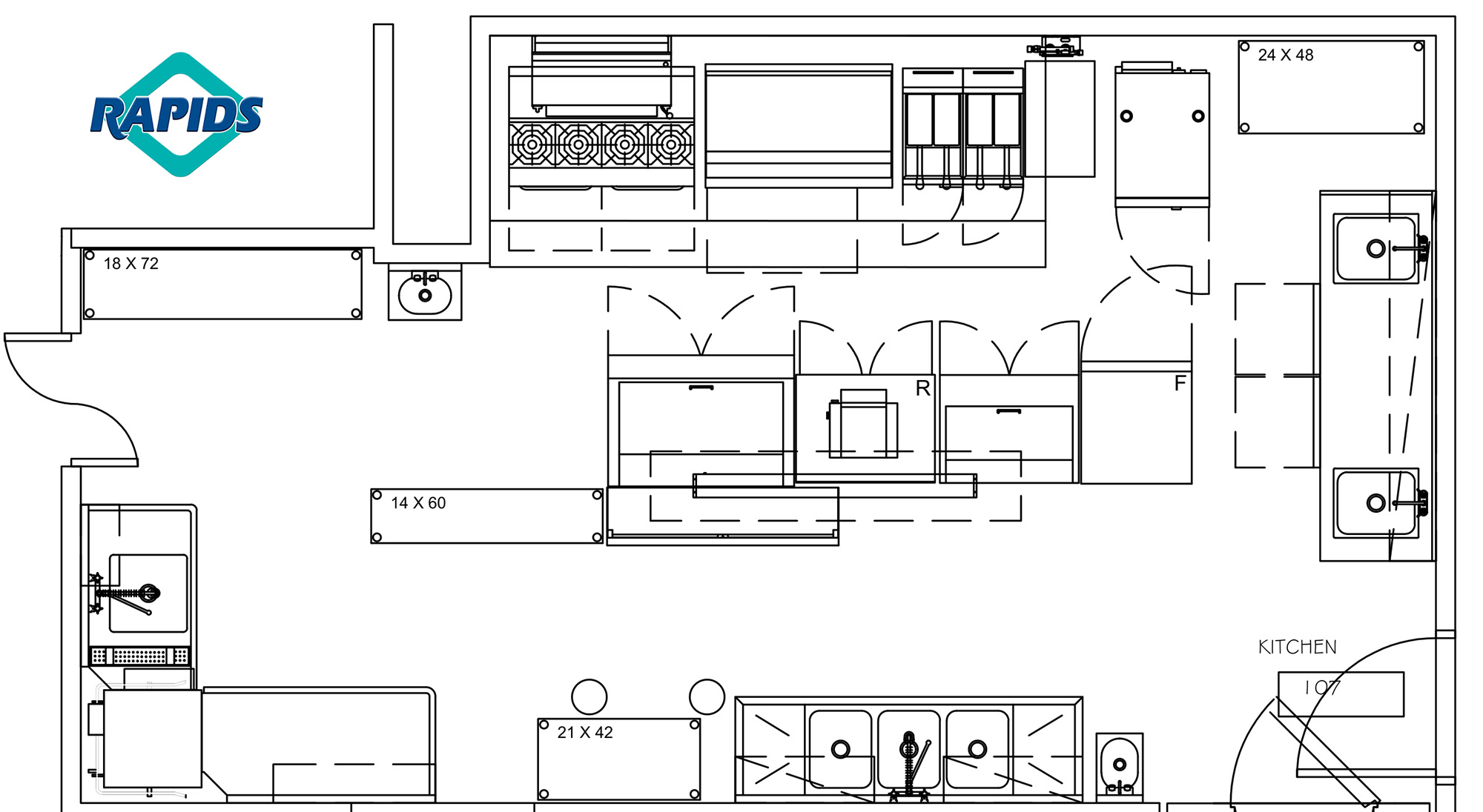
Our comprehensive involvement in the project included designing the back-of-house (BOH), front-of-house (FOH), and bar areas, as well as providing specification, procurement, and installation services. Key elements of the project included:
- A basement walk-in cooler to maximize storage, with special panels designed for delivery through a two-flight stairwell
- Custom booths and tables to enhance the dining experience
- An innovative design to optimize space, such as positioning the soda fountain between beams at the expo area—seamlessly integrating it into the environment


































One standout solution was incorporating the Converge oven from Alto-Shaam, a pivotal addition that balanced prep needs with cooking demands during service. This oven allowed CityWalk Eatery to achieve the desired style, quality, and quantity of food, all within the constraints of their compact kitchen.
This project was led by our expert team, with Solutions Engineer Tom Roberts providing innovative design solutions and Project Manager Dean Demorest overseeing the process from start to finish. Together, they ensured that CityWalk Eatery’s space met both the operational goals and the creative vision of the owners, transforming a challenging layout into a vibrant and efficient culinary destination.
Detail Photos (click to enlarge)
Back of House
Front of House








LET'S FIND YOUR SOLUTION
Rapids Contract serves the United States with locations in Iowa, Minnesota, and Missouri!
Get in touch with one of our experts and let us know how we can help with any of your foodservice needs.
Talk to one of our experts right away and get immediate assistance. We are open Mon - Fri, 8am - 5pm CST.
Get in touch with one of our experts and let us know how we can help with any of your foodservice needs.
Talk to one of our experts right away and get immediate assistance. We are open Mon - Fri, 8am - 5pm CST.




































